Construcción de Estaciones de Gas LP: errores comunes y como evitarlos.
Arq. Pablo Nájera Hernández
2/4/2025
Sabemos que la mala planeación y ejecución en la construcción de tu estación para carburación, deriva en muchos dolores de cabeza. Que terminan por hacer ineficiente tu operación, insegura para tus clientes y personal y con pocas o cero probabilidades de obtener un dictamen y por lo tanto un titulo permiso por parte de la autoridad federal. En algunos casos, una inversión perdida.
¿Cómo evitarlo, y ahorrar tiempo y dinero?
Importancia de la planeación y diseño.
Lo cierto es que al querer ahorrar dinero y tiempo, justo evitas gastar tiempo y dinero que sería bien empleado en personal competente y profesionistas del sector que te guíen y acompañen en tu proyecto. Sabemos también, que existen pocos despachos serios y especializados en materia de Gas LP, pero eso es otro tema, por ahora hablemos de los errores más comunes que cometen comisionistas y grupos gaseros, sin la asesoría adecuada.
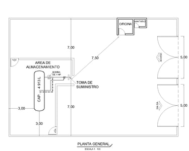
Selección del sitio y distancias mínimas:
El uso de gas LP ha crecido considerablemente, tanto en el ámbito industrial como en los hogares mexicanos, volviendo a las estaciones de servicio un componente vital de la infraestructura energética del país. Es por ello que la elección del terreno para tu estación de Gas LP, es de suma importancia, por seguridad operativa, ambiental y rentabilidad de negocio.
La NOM-003-SEDG-2004 establece los requisitos mínimos para que un terreno con una estación de servicio, pueda convivir en su contexto urbano y social con otras edificaciones, sin embargo, son consideraciones que muy pocos toman en cuenta. Encontramos estaciones cerca de escuelas, a lado de restaurantes, en frente de hospitales, etc. Motivos por el cual incumplen con la norma, y son acreedores a multas, clausuras y cierre total de las instalaciones.
Por otro lado, hay “expertos” que te exigen cumplir con más de 100 m cuando la norma solo pide 30 m. De las tangentes del tanque a unidades habitacionales, centros hospitalarios, o lugares de reunión.
A continuación, te presento algunas de las distancias más importantes a considerar para ahorrar tiempo y dinero.
El tanque no puede estar a menos de 3,00 m de distancia a cualquier lindero del predio, ya sea tanque en piso o en azotea.
Del tanque a la toma de suministro o despachador, deben existir por lo menos 3,00 m. (no aplica con tanque en azotea).
De la toma de suministro a cualquiera lindero del terreno de la estación 7,00 m, y a oficina 7,50 m.
Tampoco pueden existir estaciones por donde pasen cables eléctricos de alta tención o ductos de cualquier hidrocarburo que atraviesen el terreno de la estación.
La selección del sitio apropiado, un diseño bien estructurado y el cumplimiento riguroso de la norma, es fundamental para la construcción exitosa. Abordar estos errores desde el principio no solo preserva la seguridad, sino que también optimiza el funcionamiento de la estación a largo plazo.
Mal empleo de materiales de construcción:
Para los medios de protección contra impacto vehicular, lo más común es encontrar muretes de tabique o block, el cual no esta permitido. Puede ser murete corrido de concreto armado de por lo menos 20 cm de grosor y con ventilas a ras de piso de por lo menos 0,15 x 0,15 cm (ojo, estas ventilas no son para evitar el encharcamiento de agua pluvial, es para permitir la aireación dentro del área de almacenamiento).
Y si vas a colocar postes de concreto armado, estos deben estar construidos de 0,20 x 0,20 m. Y espaciados no más de 1,00 m entre caras interiores uno respecto al otro.
Para los postes de tubo de acero al carbono, deben de ser de 10 cm (4”) de diámetro, si son cedula 40 deben estar rellenos de concreto. Con cedula 80 no es necesario el concreto. Espaciados no más de 1,00 m entre caras interiores uno respecto al otro.
Otro error es hacer puertas de acceso que no son lo suficientemente grandes para cumplir con lo que pide la norma. Las puertas de acceso tienen que ser metálicas, de por lo menos 5.00 m y siempre deben de existir dos puertas, siempre!
Lamentable diseño del sistema de trasvase:
Vemos estaciones, que usan bombas de 5 hp, cuando por la cercanía del tanque a la toma de suministro o despachador, convendría una bomba pequeña de 1 hp. Tendrías un menor gasto en tu instalación eléctrica y recibo de luz.
Colocar la tubería del retorno líquido en la bomba, cuando la norma lo pide en la tubería de descarga de la bomba.
Trozos de manguera en vez de tramos de tubería rígida. Esto hace que el flujo de gas y la presión caigan, retardando el llenado de los tanques (recipientes), haciendo ineficiente tu estación.
En general, encontramos estaciones mal distribuidas y mal construidas, dando una mala imagen a tus clientes, que es lo que al final, debe de importarte más que nada. Una planificación y diseño diligentes no solo optimizan la operación de la estación de gas LP, sino que también aseguran su sostenibilidad a largo plazo, permitiendo que la instalación funcione de manera eficiente y segura. En consecuencia, el esfuerzo invertido en la planeación resultará en una base sólida para el proyecto, clave para evitar dificultades futuras y garantizando el éxito de la estación a lo largo de su vida útil.






Recomendaciones finales.
Más allá de estos errores señalados, nuestra prioridad en cada proyecto, debe ser la seguridad de la infraestructura de la estación, y sobre todo, de la seguridad de tus colaboradores y público en general. Es importante que busques asesoría antes de construir tu estación, y tengas un plan de ejecución, en todo caso, contratar la asesoría de especialistas que puedan encargarse del diseño y de la construcción de tu estación.
Por lo tanto, para ser un buen distribuidor de Gas LP y mejorar la apariencia de tus instalaciones, es conveniente saber elegir un terreno en una ubicación favorable, respetar las distancias mínimas, construir con los materiales adecuados y diseñar la ingeniería de la instalación eficientemente. Es lo mínimo que debes prever para asegurar tu inversión.
Incorrecto
Correcto
Correcto







